news
$45M Leander Development to Add Hotel, Event Center, and Adventure Park
A $45 million development in Leander will include a hotel, event center, trampoline park, and retail space, with construction expected to finish by early 2028.
Published February 11, 2026 at 11:00am by Claire Osborn

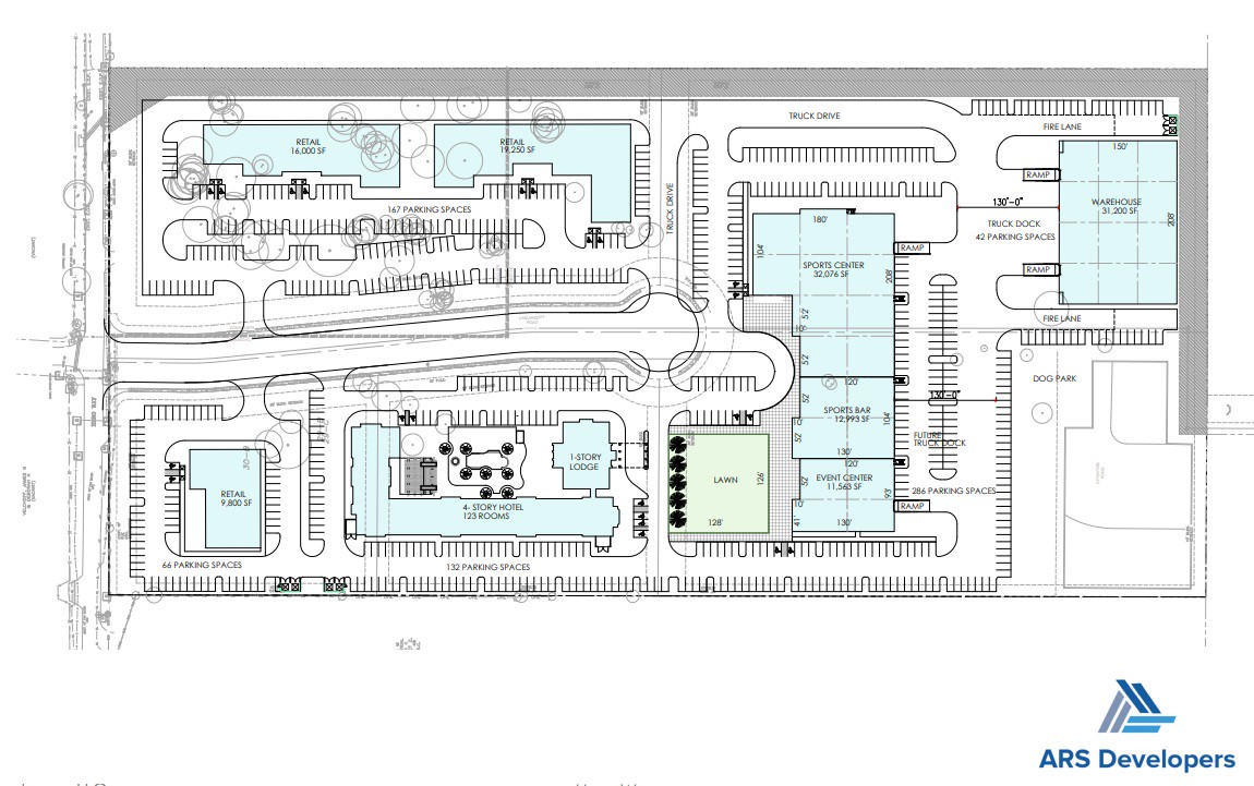
A $45 million development planned for Leander will include a hotel, event center, indoor trampoline and adventure park, sports bar and retail space.
Construction is expected to begin in the first quarter of 2027 on the 21-acre development, called “The Gathering Place,” at 2773 Hero Way, said Prasad Kolishetti, a partner with ARS Developers.
Construction on the hotel, event center and trampoline park is expected to be finished by the first quarter of 2028, he said.
ARS Development has not yet applied for building permits with the city of Leander but plans to do so soon, Kolishetti said. A city spokesperson said economic development officials could not comment on the project because the permits have not yet been submitted.
The Gathering Place is scheduled to include:
- A four-story hotel with more than 100 rooms
- A 32,000-square-foot Big Air Trampoline and Adventure Park and a 13,000-square-foot sports bar
- An 11,500-square-foot event center with a great lawn
- More than 45,000 square feet of retail space
- A 31,200-square-foot warehouse
- A dog park
“Our vision is to deliver a destination unlike any other in the region, combining hospitality, retail, entertainment and flexible commercial space into one dynamic environment,” ARS Developers said on its website.
A road construction project is expected to improve access to the planned development, said Kolishetti. Williamson County is reconstructing and widening the rural two-lane Hero Way between the 183 toll road and Garey Park into a controlled-access highway with two main lanes in each direction separated by a concrete barrier, according to a county press release issued in January.
“I see a lot of growth in the area … a lot of rooftops north of 183 and Parmer Lane,” said Kolishetti.
ARS Developers is an international company that has an office in Cedar Park, he said. The company has completed an apartment project and a villa community project in the state of Telangana, India, and is working on an office/warehouse project on Heatherwilde Boulevard and a retail/restaurant/office space along FM 685 in Pflugerville, according to its website.
